100 COLBORNE Street W - MLS® # 40615039

$5,290,000

Property Details


Living Area
23,477 sqft.
Bedrooms
N/A
Bathrooms
N/A
Lot Size Area
0.73 ac|1/2 - 1.99 acres
Taxes
N/A
Type
Office
Style
N/A
Basement
Full
Year Built
N/A

Description

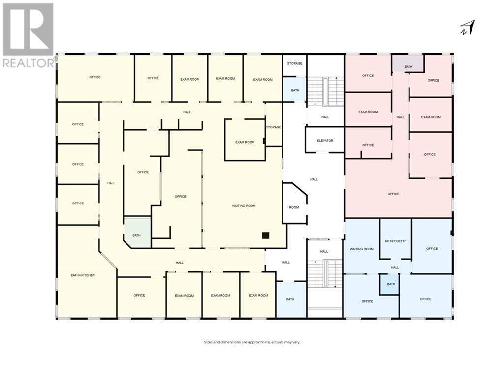
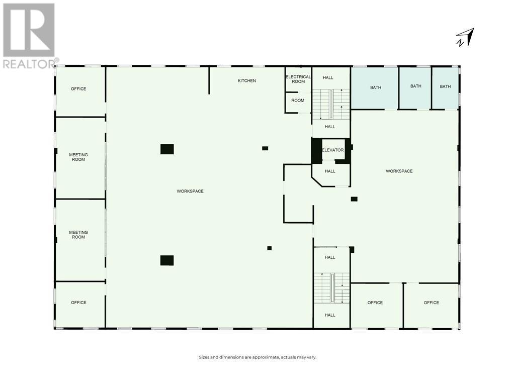
23,477 SF professional and medical building located beside Soldier’s Memorial Hospital in growing and thriving sunshine city of Orillia! Having undergone significant renovations in the last five years, this property has been stabilized with a mix type of true basic employment, between health care and financial service industries. A current vacancy of 6,834 SF on the 3rd floor provides the opportunity for a business to purchase this property and move right in. Invest here to expose your real estate portfolio to better profit margins and upside potential! Exterior photos have been modified to accurately represent the new paint color. (id:2469)

Features

Paved driveway

Amenities

Public Transit

Listing Provided By

Maven Commercial Real Estate Brokerage

Neighborhood Info

All information displayed is believed to be accurate, but is not guaranteed and should be independently verified. No warranties or representations of any kind are made with respect to the accuracy of such information. Not intended to solicit properties currently listed for sale.

The trademarks REALTOR®, REALTORS® and the REALTOR® logo are controlled by The Canadian Real Estate Association (CREA) and identify real estate professionals who are members of CREA. The trademarks MLS®, Multiple Listing Service® and the associated logos are owned by CREA and identify the quality of services provided by real estate professionals who are members of CREA.

REALTOR® contact information provided to facilitate inquiries from consumers interested in Real Estate services. Please do not contact the website owner with unsolicited commercial offers.

Send us your questions about this property and we'll get back to you right away.

Send this to a friend, or email this to yourself

CONTACT

  • Name:
    Lance Chilton
  • Phone:
    705-739-0058
  • Mobile:
    705-795-5167
  • Address
    • 152 Bayfield Street
    • Barrie, ON
    • L4M 1H2